Royaal wonen in Westland Kavel 2
- Kadastraal bekend gemeente Wateringen, sectie A, nummer 7950 (gedeeltelijk), groot circa 679 m².
- Bij Wonen aan De Wijngaard is de kwaliteit een samenspel van een toplocatie, de royale kavels met ruime tuin en uiteraard de woning. De woningen zijn gecreëerd met een ruime woonkamer, eetkamer en keuken als basis en verder wordt de woning uiteraard uitgevoerd met mooie en solide materialen.
- De Wijngaard, ligt centraal tussen Delft, Den Haag en Westland en biedt volop mogelijkheden voor jong en oud. Voor dagelijkse activiteiten of recreatieve uitjes is alles dichtbij.
- Ook natuurliefhebbers komen hier aan hun trekken, met de nabijgelegen parken, landelijke omgeving en het strand, ideaal voor wandel- en fietstochten.
- Prachtig wonen aan de Wijngaard in Kwintsheul, in de gewilde wijk de Ranken, met deze twee riante vrijstaande villa’s op ruime kavels. Gelegen nabij de Poeldijkseweg geniet je van een rustige en landelijke omgeving, terwijl je toch snel toegang hebt tot alle voorzieningen. Hier ervaar je de ideale balans tussen rust en ruimte, met alle gemakken binnen handbereik.
- De royale kavels en luxe statige villa’s garanderen een hoogwaardige woonervaring, met daarnaast de vrijheid om woningopties te kiezen en de mogelijkheid om samen te werken met onze ontwerper om jouw droomhuis te realiseren.
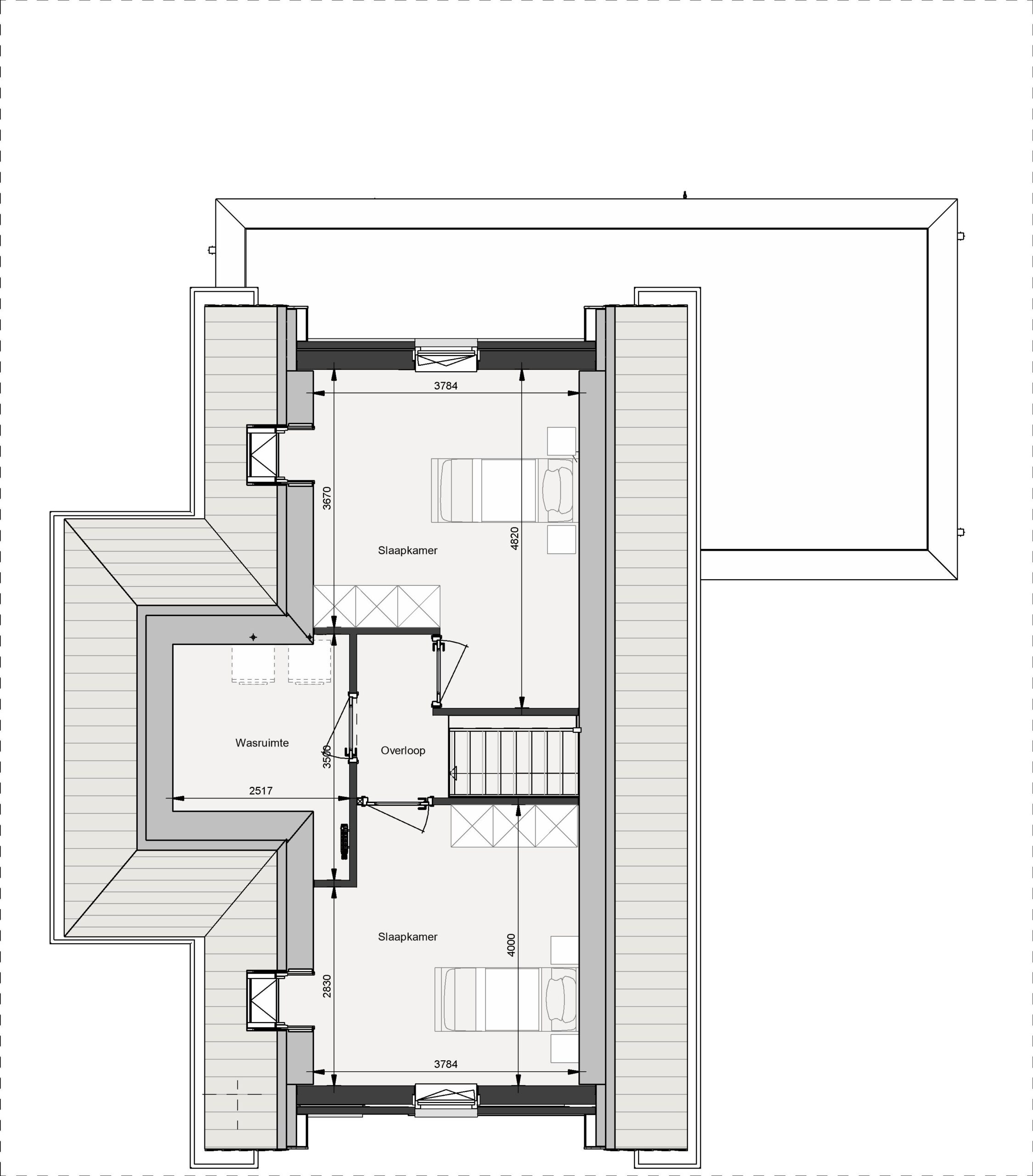
- Deze linker woning, op kavel 2, is voorzien van de entree aan de zijkant. Vanuit de hal kom je in de zeer ruime woonkamer en keuken, waar nog extra uitbreidingen aan mogelijk zijn om de ruimte af te stemmen op jouw wensen. Op de eerste verdieping zijn drie slaapkamers en een badkamer aanwezig. Op de tweede verdieping bevinden zich nog twee slaapkamers en een wasruimte. Ook hier zijn er opties voor nog andere indelingen mogelijk, waarbij bijvoorbeeld nog een extra badkamer gerealiseerd kan worden.
- Met deze woning is er genoeg ruimte om je droomhuis te realiseren en van je privacy te genieten. Centraal gelegen tussen grote steden en omringd door natuur. Voeg opties toe aan je woning, zodat deze perfect aansluit bij jouw wensen en situatie. Heb je nog andere ideeën? Geen probleem, het interieur is geheel naar wens in te delen!
Voor meer informatie: www.wonenaandewijngaard.nl
Kenmerken
| Adres: | De Wijngaard 21 Kwintsheul |
|---|---|
| Betreft: | Nieuwe vrijstaande villa. |
| Richtprijs: | € 1.395.000,00 V.O.N. |
| Oplevering: | In overleg. |
| Status: | Te Koop. |
















