Mr. Jan Tuningstraat 74 te Naaldwijk
Welkom in deze prachtige, volledig gerenoveerde tussenwoning! Een woning gebouwd in 1961, doch in 2022 volledig getransformeerd naar een moderne woning van deze tijd, met al het hedendaagse comfort, luxe en een energiezuinig A label! Deze woning is het voorbeeld van de instapklare woning, welke sfeervol en hoogwaardig is afgewerkt. Door de ruime uitbouw, van 4 meter aan de achterzijde en de breedte van de woning (beukmaat) van 5,75 meter, is de living meer dan riant te noemen. Met de openslaande deuren naar de verzorgde achtertuin, op het westen, is het ook buiten genieten van deze vrije achtertuin.
- Kadastrale aanduiding: Kadastraal bekend gemeente Naaldwijk, sectie C, nummer 1400, groot 129 m².
- Omgeving:
- Centraal gelegen in Westland, kern Naaldwijk.
- Op 5 minuten loopafstand van centrum Naaldwijk.
- Binnen enkele minuten op de uitvalswegen richting Den Haag, Rotterdam en Rijswijk.
- Speeltuin om de hoek.
- Blijvend vrij uitzicht aan de voorzijde met veel openbaar groen en waterpartijen.
- Ruime parkeerplaats om de hoek en oplaadmogelijkheden voor elektrische auto’s.
- Woonhuis:
- Type: Tussenwoning.
- Bouwjaar: 1961, doch in 2022 volledig gerenoveerd.
- Gebruiksoppervlakte woning: 116 m².
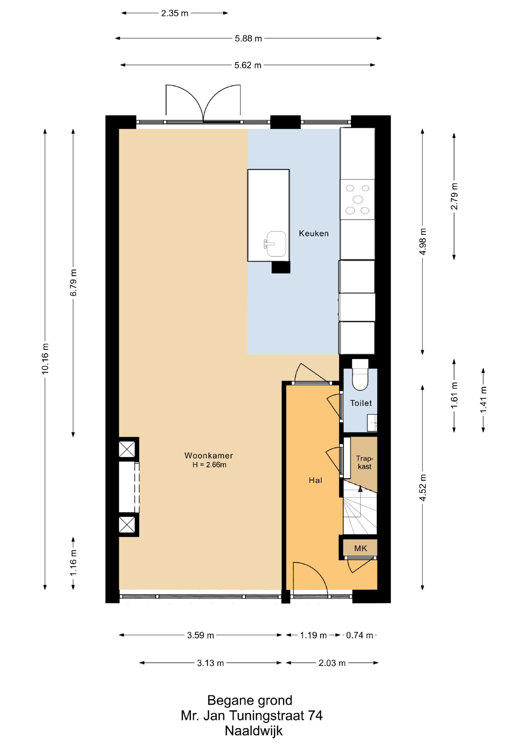
- Indeling begane grond:
- Verzorgde voortuin met groen en sierbestrating naar de voordeur, met daarboven een luifel met verlichting.
- Fraaie entree, met doorkijk, middels “glazen deur”, naar de living.
- Meterkast en vaste trap naar de eerste etage.
- Kelder, vloer en trappetje betegeld.
- Toiletruimte (2022), vloer en wanden geheel betegeld, fraaie nis, wandcloset en fonteintje, inbouwspot gestuurd op bewegingsmelder.
- Woonkamer, voorzien van een strak gestuukt plafond, met speelse verlaagde ronding ter plaatse van de overgang van keuken/eethoek en de zithoek. Riante gashaard met een breedte van 120 cm, ingebouwd in een wandmeubel waar ook de TV mooi in is verwerkt. Wand- en inbouwspots, allen led en dim-baar. Openslaande terrasdeuren naar de zonnige tuin, welke op het westen is gelegen.
- Open keuken. Luxe keukenopstelling (2022) met spoeleiland en bargedeelte, voorzien van keramiek aanrechtblad.
- Inbouwapparatuur:
- Vrijstaand 5 pits gasfornuis, waarvan 1 wok brander en met grote oven.
- Afzuigkap.
- Vaatwasmachine (Siemens).
- Spoelbak.
- Koelkast (AEG).
- Koelkast met vriesvak (AEG).
- Vrieskast met drie laden (AEG).
- Combi Oven-Magnetron (AEG).
- Quooker.
- Inbouwapparatuur:
- Eerste etage:
- Overloop, met vaste kast en trap naar de tweede etage.
- Twee ruime slaapkamers, voorzien van laminaatvloer.
- Wasruimte voorzien van tegelvloer, wasmachine- en drogeraansluiting en bergruimte.
- Badkamer voorzien van:
- Inloopdouche met deuren.
- Wastafelmeubel met spiegel.
- Wandcloset
- Designradiator
- Mechanische ventilatie, maar tevens ook “bovenlicht” om te ventileren.
- Inbouwspots
- Vloerverwarming
- Tweede etage:
- Open vrije ruimte, in gebruik als ruime slaapkamer, voorzien van:
- Laminaatvloer
- Dakkapel met rolhorren.
- Twee “Velux” dakramen, voorzien verduisteringsrolgordijnen.
- Diverse inbouwspots.
- Berging in het afgewerkte knieschot.
- Vaste kast.
- Airco (2022), merk: Bosch, Climate 5000i.
- Open vrije ruimte, in gebruik als ruime slaapkamer, voorzien van:
- Voorzieningen:
- De gehele parterre is voorzien van een riante 80 x 80 tegel (2022) en voorzien van vloerverwarming.
- De gehele “zonzijde” (begane grond, 1e en 2e verdieping) zijn voorzien van elektrisch bedienbare screens.
- Achtertuin bereikbaar middels achterom en voorzien van buitenkraan.
- Inbraakbeveiliging, merk: Unii (2022), voorzien van bewegingsmelders en magneetcontacten op de openslaande delen. Te bedienen middels bedieningspaneel en tevens middels een app.
- In de gehele woning zijn zowel de wanden als de plafonds strak gestuukt. Wanden zijn overwegend voorzien van Renovlies en nadien gesausd en deels voorzien van behang, hetgeen een bijzondere strakke warme uitstraling genereerd.
- Combi ketel, merk: “Remeha Avanta 28c” bouwjaar 2021, gestuurd door slimme Honeywell home thermosstaat (2023).
- De woning is volledig geïsoleerd en geheel voorzien van isolerende beglazing.
- De elektra-installatie is in 2022 volledig vernieuwd en in de gehele woning is de verlichting dim-baar en voorzien van energiezuinige Ledverlichting.
- 11 zonnepanelen (2022), allen voorzien van optimizers, Solar Edge omvormer. Totaalvermogen: 4.400 Wp.
- Buitenzijde van de woning in 2024 geschilderd door een erkende schilder.
- De boeidelen van de dakgoten en dakkapellen zijn in 2024 vervangen met Keralit, waarmee deze onderhoudsvrij zijn.
- Buitenruimten:
- Berging:
- Oppervlakte circa 6 m².
- Betonvloer, wanden van “steens” metselwerk en plat dak met bitumen dakbedekking.
- Voorzien van verlichting en elektra.
- Bereikbaar middels achterom.
- Siertuin:
- Verzorgde onderhoudsvriendelijke achtertuin, op het westen, voorzien van sierbestrating en overwegend voorzien van betonnen en deels van hard houten erfafscheidingen. Ledverlichting in de overstek van de woning. Vaste plantenbakken met onder andere Olijfbomen.
- Gastvrije verzorgde voortuin met veel groen en voorzien van sierbestrating.
- Berging:
- Richtprijs:
- € 515.000,00 kosten koper.
- Oplevering:
- Begin mei 2025
Kenmerken
| Adres: | Mr. Jan Tuningstraat 74 Naaldwijk. |
|---|---|
| Betreft: | Tussenwoning. |
| Richtprijs: | € 515.000,00 k.k. |
| Oplevering: | Begin mei 2025. |
| Status: | Verkocht! |



































